Professional Service with a Personal Touch
Legend:
New Listing
Open House
Virtual Tour
Under Contract
4767 Creek Road Blue Ash OH 45242
Listing Information
Price $1,075,000
Listing Number 1849091
Under Contract

View Property on Map
Agent Remarks
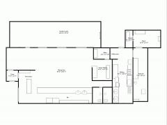
Looking for your next investment? This is an incredible opportunity to purchase the building, while the business remains in operation - generating income each month, year over year! Tenant, Sammy's Burgers & Beers, has 24 years' experience with 16 years being in this location alone. Tenant is ready to sign a 10+ year Triple Net Lease (NNN) at $8,125/month - generating a lucrative 9%+ cap rate, ideal for the savvy investor. Recent updates (2020) include: Roof, Siding, Plumbing, Electric, Furnace, Concrete, plus a Full Interior Remodel. 3D Virtual Tour and Floor Plan Attached.

Commercial Information
# of Buildings1
Best ForRestaurant
General Information
Property TypeCommercial Sale
CountyHamilton
SubdivisionBlue Ash
Zip Code45242
Listing Number1849091
Property Features
BasementNone
ParkingLot, Private, Asphalt
HeatingGas, Forced Air
CoolingCentral Air


Additional Information
LevelsOne
ConstructionVinyl Siding
GasNatural
WaterPublic
SewerPublic Sewer
FoundationSlab
OccupancyTenant Right


Request more info about this property:





This listing courtesy of Adam D Jessen (513-236-5088), RE/MAX United Associates (513-655-2300). All Information is believed accurate, but is NOT guaranteed.
The data relating to the real estate for sale on this web site comes in part from the Broker Reciprocity program of the MLS of Greater Cincinnati, Inc. Real estate listings held by brokerage firms other than Jordan Realtors are marked with the Broker Reciprocity logo or Broker Reciprocity house icon. The properties displayed may not be all the properties available through Broker Reciprocity.